Les candidats retenus pour le prix Zumtobel Group sous les feux de la rampe : Megacity Skeleton
Comment améliorer les conditions de vie dans les logements à forte densité de population ?
Les candidats retenus dans la catégorie Initiatives et Développements Urbains du prix Zumtobel Group, qui est parrainé par Thorn Lighting, ont été annoncés. On trouve parmi eux Megacity Skeleton, un projet de logement prototype basé dans le district de Kampung Cikini, à Jakarta, qui vise à améliorer les conditions de vie dans les zones résidentielles à forte densité de population.
Ce projet est le fruit d’une collaboration entre UNITYDESIGN, l’université de Chiba, l’Institut de recherches pour l’Humanité et la Nature, et Universitas Indonesia. Il vise à donner aux habitants de quartiers urbains pauvres et à forte densité de population des logements de meilleure qualité, sans intervention gouvernementale, afin de réduire le risque que des quartiers entiers soient démolis de force pour céder la place à des logements de plus haute valeur.
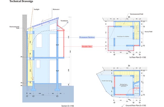
L’une des méthodes utilisées consiste par exemple à augmenter la lumière naturelle dans les logements à haute densité de population. En créant un vide derrière chaque résidence, le plan permet à davantage de lumière naturelle d’entrer dans les logements, sans qu’il soit nécessaire pour cela d’élargir les routes ou de démolir des bâtiments.
Le projet Megacity Skeleton a créé des résidences prototypes qui incorporent deux éléments principaux : un « squelette permanent » et une « peau flexible ». Le squelette permanent est extrêmement robuste et fournit un lieu de vie clair et bien aéré. Entre temps, la peau flexible qui recouvre la structure permanente peut le cas échéant être renouvelée par les utilisateurs, pour veiller à ce que les logements puissent être utilisés pendant de nombreuses années à venir.
Grâce à Megacity Skeleton, les habitants de quartiers urbains à haute densité de population peuvent être fiers de leur logement et de leurs environs. Grâce à un contact permanent avec les communautés locales, notamment par le biais de réunions et d’ateliers, le projet contribue à éduquer les gens sur la façon d’améliorer leur environnement construit, tout en contribuant à une vision d’avenir positive.
Le projet gagnant sera annoncé lors de la conférence de presse du prix Zumtobel Group, qui se déroulera à Londres le 22 septembre. Pour tous renseignements complémentaires, consultez le site www.zumtobel-group-award.com/en/957.asp
Copyright:
UNITYDESIGN / Université de Chiba / Institut de recherches pour l’Humanité et la Nature (JP) / Universitas Indonesia (RI) et NUWALARUPA, photographe.





